42 2003 lincoln town car wiring diagram
2003 Lincoln Town Car Owners Manual - store.bubbies.com LINCOLN Car Manuals PDF download free - Aviator, Blackwood, LS, MKC, MKS, MKT, MKZ, Town Car, Zephyr, Navigator, Continental, Mark; Lincoln Wiring Diagrams; Lincoln Cars History Looking for a wiring diagram of the dash/stereo area for our 2003 Lincoln Towne car signature. #327. Juan José barrera (Sunday, do you have a repair manual for 2003 lincoln town car radio wiring colour codes - CarGurus Asked by Matthew Jul 24, 2018 at 11:03 AM about the 2003 Lincoln Town Car Cartier. Question type: Car Customization. I am installing a new stereo in my 2003 LINCOLN TOWN CAR CARTIER and I. need the wiring diagram (colour codes) for all four plugs in the stock radio. If. you could actually send me the entire wiring diagram for the whole car that.
2003 Lincoln Town Car Wiring Diagram Collection - Wiring ... In case there's a surface wire, it will be a water piping wire held in place by a attach on the same side since the fairly neutral terminal. The actual distinction between the wires will allow you to wire your home properly and avoid the high voltage of swapping the neutral and hot. 3. Three-inch guideline

2003 lincoln town car wiring diagram
2003-2004 Lincoln Town Car Vehicle Wiring Chart and Diagram Version Listed below is the vehicle specific wiring diagram for your car alarm, remote starter or keyless entry installation into your 2003-2004 Lincoln Town Car . This information outlines the wires location, color and polarity to help you identify the proper connection spots in the vehicle. VW - Car PDF Manual, Wiring Diagram & Fault Codes DTC VW Car Manuals PDF & Wiring Diagrams, Volkswagen Fault Codes DTC above the page - 1500, 1500S, Amarok, Beetle, Bora, CC, Crafter, Eos, Golf, Jetta, Kafer, Karmann Ghia, Lupo, Passat, Polo, Scirocco, Sharan, Tiguan, Touareg, Transporter; VW EWDs. In 1937, Volkswagen was founded, which was to become the symbol of the new Germany. In the shortest possible time, … 2003 Lincoln Town Car Electrical Wiring Diagrams Original ... 2003 Lincoln Town Car Electrical Wiring Diagrams All Including Town Car Executive, Town Car Executive L, Town Car Signature, Town Car Cartier, Town Car Cartier L, Town Car Base Limousine, Town Car Executive Limousine & Town Car Executive Protection Series Published by the Ford Motor Company
2003 lincoln town car wiring diagram. 2003 Lincoln town car wiring diagram? - Answers Where can you find a wiring diagram 2004 Lincoln town car? When fixing a car it is important to have the wiring diagram. A diagram for a 2004 Lincoln town car can be found online in many forums ... Lincoln Radio Stereo Wiring Diagrams - MODIFIEDLIFE Lincoln Radio Stereo Wiring Diagrams Having a Lincoln stereo wiring diagram makes installing a car radio easy. Find the Lincoln radio wiring diagram you need to install your car stereo and save time. Scroll down and find the Lincoln wire guide you need. It's that easy! The best part? 2003 Lincoln Town Car Fuse Box Diagram - Vehiclepad | 1988 ... 2003 Lincoln Town Car Fuse Box Diagram - Vehiclepad | 1988 Lincoln intended for 2005 Lincoln Town Car Fuse Box Diagram by admin From the thousands of pictures on the internet about 2005 Lincoln Town Car Fuse Box Diagram, we all picks the top series using best image resolution just for you all, and this images is actually one of images selections in our finest photos gallery about 2005 Lincoln ... Original 2003 Lincoln Town Car Wiring Diagrams Service ... Original 2003 Lincoln Aviator Shop Service Manual + Wiring Diagrams Set 03. $130.00. + $10.99 shipping. + $10.99 shipping + $10.99 shipping. Original 1997 Lincoln Town Car Shop Service Manual + EVTM Wiring Diagrams Set. $150.00. + $9.10 shipping + $9.10 shipping + $9.10 shipping. Check if this part fits your vehicle. Contact the seller.
FIAT - Car PDF Manual, Wiring Diagram & Fault Codes DTC FIAT Car Manuals PDF & Wiring Diagrams above the page - 600, Grande Punto, Uno, 500, Ducato, Scudo; FIAT Cars EWDs - 124 Spider, Cinquecento, 1500, Punto, Ducato, 500, Uno, Bravo; FIAT OBDII Fault Codes DTC.. The first car under the brand FIAT was released sometime in 1901. Designed by a talented engineer Faccioli, a car like the coach, was equipped with a 2 … Lincoln Town Car Cartier: Im trying to find a wiring diagram… Im trying to find a wiring diagram for the driver door module for a 2003 lincoln town car cartier. Not having too much - Answered by a verified Lincoln Mechanic We use cookies to give you the best possible experience on our website. Wiring Diagrams for Cars, Trucks, & SUVs - AutoZone Mazda Protégé and Cars 1990-1998 and Ford Probe 1993-1997 Wiring Diagrams Repair Guide. Find out how to access AutoZone's Wiring Diagrams Repair Guide for Mazda 323, MX-3, 626, MX-6, Millenia, Protégé 1990-1998 and Ford Probe 1993-1997. Read More. betsson263-registrieren.de Honda key immobilizer bypass. Doing an engine swap in my mb2 now been reading up about it and loads of people have said you need key and immobilizer box when you do it. The 555H H
2003 lincoln towncar radio wiring diagram - Fixya Where is fuel pump relay on 2003 lincoln towncar Go to for free wiring diagrams . Click on technical information , then click on TSB'S an wiring diagrams , next page click on I agree at bottom of the page. Next click on wiring diagrams an the enter your vehicle info. 2003 Lincoln Town Car Factory Service Manual Original Shop ... This is the Official Service Manual that the dealers and shops use, written by Ford specifically for the vehicle (s) listed. This ensures you get the job done right the first time. It is incredibly comprehensive with detailed diagrams and exploded views. This is the best money can buy and a must for anyone who insists on Genuine OEM quality parts. 2003 Lincoln Navigator Engine Diagram | Lincoln town car ... Electrical Wiring Diagram. Lincoln Town Car. 55 New Delco Radio Wiring Diagram. 55 New Delco Radio Wiring Diagram- Car radio installation frills comprise of harness adapters leads, fascia adapters, stalk/steering wheel govern adapters (also known as intellectual leads) and aerial adapters. Delco Radio Wiring Diagram 1993 WiringDelco Radio ... 2003 Lincoln Town Car Original Wiring Diagrams: Lincoln ... 2003 Lincoln Town Car Original Wiring Diagrams Paperback - January 1, 2003 by Lincoln(Author) 5.0 out of 5 stars2 ratings See all formats and editions Sorry, there was a problem loading this page. Try again. Price New from Used from Paperback, January 1, 2003 "Please retry" $99.99 $99.99 Paperback$99.99 1 Used from$99.99
1998-2002 Lincoln Town Car Vehicle Wiring Chart and Diagram Listed below is the vehicle specific wiring diagram for your car alarm, remote starter or keyless entry installation into your 1998-2002 Lincoln Town Car.This information outlines the wires location, color and polarity to help you identify the proper connection spots in the vehicle.
2003 Lincoln Town Car repair manual - Factory Manuals 2003 Lincoln Town Car repair manual + wiring diagrams (optional) The 2003 Lincoln Town Car repair manual PDF will be created and delivered using your car VIN . The 2003 Lincoln Town Car service manual PDF delivered by us it contains the repair manual and some of the parts manual in a PDF file full indexed, and hyperlinks functional.
2003 Lincoln Town Car Stereo Wire Harness Guide - MODIFIEDLIFE Whether your an expert Lincoln Town Car mobile electronics installer, Lincoln Town Car fanatic, or a novice Lincoln Town Car enthusiast with a 2003 Lincoln Town Car, a car stereo wiring diagram can save yourself a lot of time. Automotive wiring in a 2003 Lincoln Town Car vehicles are becoming increasing more difficult to identify […]
2003 Lincoln town Car Wiring Diagram Download Collection of 2003 lincoln town car wiring diagram. A wiring diagram is a simplified conventional pictorial representation of an electric circuit. It shows the parts of the circuit as streamlined forms, and the power and signal links between the devices.
2003 Lincoln town car relay diagram - Fixya All lights are working on a 2007 lincoln town car signature limited except tail lights license plate light and side marker lights replaced lcm headlight switch and all bulbs That sounds like a blown fuse, but your vehicle also has 'lighting modules'. 2003-2011 Lincoln Town Car Fuse Box Diagram > shemy > 607-2003-2011-linc...
2003 Lincoln Town Car Original Wiring Diagrams 2003 Lincoln Town Car Original Wiring Diagrams Email a friend Description Customer Reviews Model-Years Covered Written for Lincoln dealership mechanics, this factory-published original wiring diagram shows you how to follow the wiring from bumper-to-bumper.
Flour Mill Rye [4MH368] — Sunrise Flour Mill, in this east-central Minnesota town, mills single source organic heritage wheat and rye which is sold as flour or manufactured into a line of pastas. I have since changed it to 1 1/2 cups of bread flour, 1 1/2 cups of whole wheat flour, and 1 1/2 cups of rye flour. This makes a strong, dark, heavy bread, excellent for sourdoughs, using yoghurt for half the …
2002 Lincoln Town Car Light Wiring Diagram Pictures ... See also Door Panel Wiring 2003 Lincoln Ls Images 5. Add a Junction Box Never splice wire connections together and hide them within a wall with no verse box — an accessible junction package should always be used to become a member of wires. 6. Replace Old Wiring That Shows Indications of Deterioration or Fraying 7. Fix Fuse and Breaker Problems 8.
Lincoln Town Car Executive 2004 - ALL WIRING DIAGRAMS ... AIR CONDITIONING - Lincoln Town Car Executive 2004 - SYSTEM WIRING DIAGRAMSANTI-LOCK BRAKES - Lincoln Town Car Executive 2004 - SYSTEM WIRING DIAGRAMSANTI-THEFT - Lincoln Town Car Executive 2004 - SYSTEM WIRING DIAGRAMSBODY CONTROL MODULES - Lincoln Town Car Executive 2004 - SYSTEM WIRING DIAGRAMSCOMPUTER DATA LINES - Lincoln Town Lincoln Town Car Executive 2004 - ALL WIRING DIAGRAMS
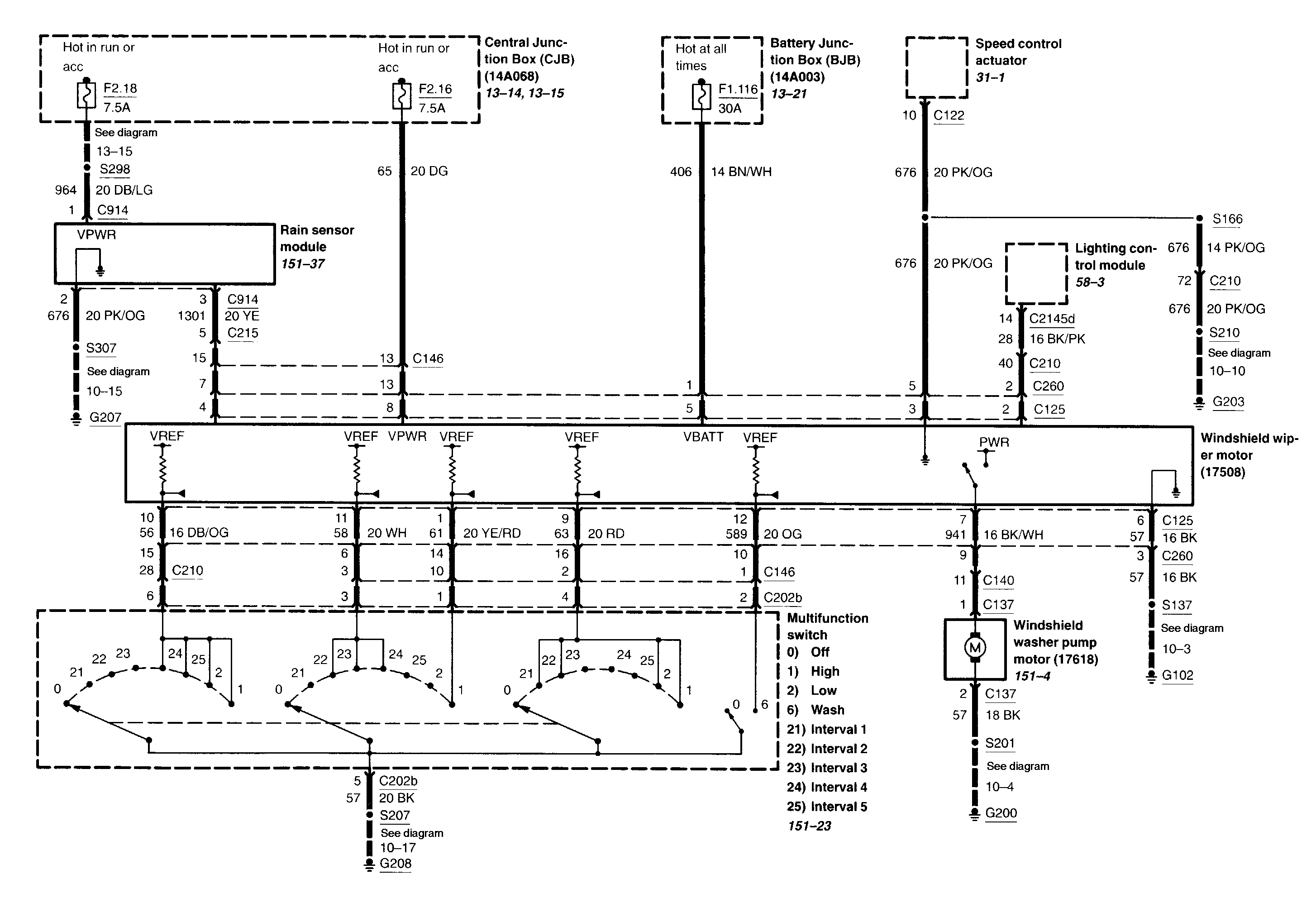
CRUISE CONTROL - Lincoln Town Car Signature 2003 - SYSTEM ... CRUISE CONTROL Cruise Control Wiring Diagram CRUISE CONTROL - Lincoln Town Car Signature 2003 - SYSTEM WIRING DIAGRAMS
Chevrolet Silverado (2003 - 2006) - fuse box diagram ... 02/01/2021 · Chevrolet Silverado (2003 – 2006) – fuse box diagram. Year of production: 2003, 2004, 2005, 2006. Passenger Compartment Fuse Box Chevrolet Silverado – fuse box ...
PDF Wiring Diagram For 2003 Lincoln Town Car wiring-diagram-for-2003-lincoln-town-car 1/2 Downloaded from stats.ijm.org on April 8, 2022 by guest Wiring Diagram For 2003 Lincoln Town Car Yeah, reviewing a books Wiring Diagram For 2003 Lincoln Town Car could mount up your close links listings. This is just one of the solutions for you to be successful.
2003 Lincoln town Car Wiring Diagram - autocardesign 2003 Lincoln town Car Wiring Diagram- wiring diagram is a simplified standard pictorial representation of an electrical circuit.It shows the components of the circuit as simplified shapes, and the talent and signal associates surrounded by the devices.
tiptogo.de Jeep wrangler anti theft reset
LINCOLN: ROD..WIRING DIAGRAM OF THE SEAT CIRCUITS thanks ... Here are the connector diagrams for the power seat module connectors. Also if you look at the wiring diagrams, next to the wire color, there is a number. That is the wire gauge. (EX.. 14 BK/WH would be Black Wire with White Stripe, 14 Gauge). What all have you pulled out of the Lincoln?
Color Coded Wiring Diagram For The Fuel Pump In A 2000 ... Ford Town Car, LTD/Crown Vic Harness. FT- &oq=color+coded+wiring+diagram+for+the+fuel+pump+in+a++Lincoln+ town+car+with+a++motor. The fuel pump relays and the EEC module are good. along the wiring and find out where the power is interrupted- you will need a wiring diagram Lincoln Town Car - engine roars sometim when the engine is cold.Lincoln ...
Lincoln Town Car (2003-2011) Fuse Diagram - FuseCheck.com Lincoln Town Car (2003-2011) Fuse Diagram Advertisements Fuse box diagram (fuse layout), location, and assignment of fuses and relays Lincoln Town Car S, D, E, C, U (2003, 2004, 2005, 2006, 2007, 2008, 2009, 2010, 2011). Checking and Replacing Fuses Fuses and circuit breakers protect your vehicle's electrical system from overloading.
2003 Lincoln Town Car Electrical Wiring Diagrams Original ... 2003 Lincoln Town Car Electrical Wiring Diagrams All Including Town Car Executive, Town Car Executive L, Town Car Signature, Town Car Cartier, Town Car Cartier L, Town Car Base Limousine, Town Car Executive Limousine & Town Car Executive Protection Series Published by the Ford Motor Company
VW - Car PDF Manual, Wiring Diagram & Fault Codes DTC VW Car Manuals PDF & Wiring Diagrams, Volkswagen Fault Codes DTC above the page - 1500, 1500S, Amarok, Beetle, Bora, CC, Crafter, Eos, Golf, Jetta, Kafer, Karmann Ghia, Lupo, Passat, Polo, Scirocco, Sharan, Tiguan, Touareg, Transporter; VW EWDs. In 1937, Volkswagen was founded, which was to become the symbol of the new Germany. In the shortest possible time, …
2003-2004 Lincoln Town Car Vehicle Wiring Chart and Diagram Version Listed below is the vehicle specific wiring diagram for your car alarm, remote starter or keyless entry installation into your 2003-2004 Lincoln Town Car . This information outlines the wires location, color and polarity to help you identify the proper connection spots in the vehicle.
0 Response to "42 2003 lincoln town car wiring diagram"
Post a Comment