Iklan 300x250

42 goodman electric furnace wiring diagram

Wiring Diagrams . ... 3 kW – 25 kW electric heater kits. • AHRI certified; ETL listed. • Rigid SmartFrame™ cabinet ... Electrical. 1 -‐ 208/240 V, 1 Phase, ...8 pages 3105: 1.5 - 2.5 Tons Cooling / 5kW Electric Heat ... Always refer to the wiring diagram on the unit for the most up-to-date wiring. ACNF ...

If a furnace or air handler is installed in an enclosed area such ... Installation Manual and wiring diagram for complete wiring details.13 pages

Goodman electric furnace wiring diagram

Goodman electric furnace wiring diagram

Goodman HVAC Manuals, Parts Lists, Wiring Diagrams Table of Error Codes for Goodman & Amana Furnaces Free downloadable copies of installation and service ... Nov 02, 2021 · Genteq 5kcp39pg. genteq, 5KCP39PGUA24AS, 5KCP39PG, UA24AS, F713Y5921570, 001272, 71172557, HB46TR113, F17V, Replacement Components Division, Factory Authroized Parts ... NOTE: The electric heating elements for electric furnace ... Low Voltage Wiring Diagram for Cooling Unit with optional heat kit 10KW and below. W2 W Y G R.9 pages

Goodman electric furnace wiring diagram. Goodman Air Handler Wiring Diagram Electric Furnace at Heat Pump. Goodman Aruf Air Handler Wiring Diagram Image. Goodman Air Handler Wiring Diagram ... Ecobee3 Wiring Diagrams Ecobee Support. Overall I would recommend the Ecobee to anyone using a millivolt system or not. Our thermostat test Apr 06, 2020 · Goodman Heat Pump Thermostat Wiring Diagramgoodman heat pump thermostat wiring diagram, Every electric arrangement is composed of various unique parts. The unit model is aspt36c14. We have a 15 yr old Goodman GMT070-3 furnace with a variable speed 1/3 HP indoor blower motor. Installation was neat and clean, and complete within five days. When increasing the blower speed, loosen the setscrew a little bit. Furnace Tips and Advice for Repairs Frequently Asked Questions. Mar 06, 2021 · White wires are for heating. You will find them in gas furnace thermostats, for example, but won’t find them in air conditioner thermostats. W wires go directly to the source of heating; that may be a furnace (gas, electric, oil, you name it) or heat pumps (mini-split heat pumps included). W2 is designated for two-stage heating.

Goodman does not assume ... electric furnace. The electric heating ... Low Voltage Wiring Diagram for Cooling Unit with optional heat kit 10KW and below.27 pages NOTE: The electric heating elements for electric furnace ... Low Voltage Wiring Diagram for Cooling Unit with optional heat kit 10KW and below. W2 W Y G R.9 pages Nov 02, 2021 · Genteq 5kcp39pg. genteq, 5KCP39PGUA24AS, 5KCP39PG, UA24AS, F713Y5921570, 001272, 71172557, HB46TR113, F17V, Replacement Components Division, Factory Authroized Parts ... Goodman HVAC Manuals, Parts Lists, Wiring Diagrams Table of Error Codes for Goodman & Amana Furnaces Free downloadable copies of installation and service ...

Need help wiring Goodman Package Unit GPH1442 to Hunter ...

Need help wiring Goodman Package Unit GPH1442 to Hunter ...

Lord Goodman in his Yellow Pajamas (1987) // Lucian Freud English, born Germany, 1922-2011

Lord Goodman in his Yellow Pajamas (1987) // Lucian Freud English, born Germany, 1922-2011

Where to attach the c-wire inside Goodman GMP100-4 Furnace - Home Improvement Stack Exchange

Where to attach the c-wire inside Goodman GMP100-4 Furnace - Home Improvement Stack Exchange

11+ Goodman Furnace Thermostat Wiring Diagram | Robhosking ...

11+ Goodman Furnace Thermostat Wiring Diagram | Robhosking ...

unknown

unknown

Goodman HKR-10C 10 Kilowatt Heater Coil (34,100 BTUs of Heat)

Goodman HKR-10C 10 Kilowatt Heater Coil (34,100 BTUs of Heat)

I have an 18 KW-240V Nortron electric furnace with attached

I have an 18 KW-240V Nortron electric furnace with attached

woman standing watching LED light musical instrument

woman standing watching LED light musical instrument

unknown

unknown

unknown

unknown

B1340020S - Goodman OEM Replacement Furnace Blower Motor 1/2 HP - Hvac Controls - Amazon.com

B1340020S - Goodman OEM Replacement Furnace Blower Motor 1/2 HP - Hvac Controls - Amazon.com

Goodman 10kw Heat Strip Wiring Diagram

Goodman 10kw Heat Strip Wiring Diagram

Diagram based goodman manufacturing wiring diagrams. Goodman Package Unit Wiring Diagram

Diagram based goodman manufacturing wiring diagrams. Goodman Package Unit Wiring Diagram

black usb cable plugged in white electric socket

black usb cable plugged in white electric socket

black and silver car on parking lot

black and silver car on parking lot

teal and brown electric guitar

teal and brown electric guitar

Goodman Heat Pump Air Handler Wiring Diagram : York Air ...

Goodman Heat Pump Air Handler Wiring Diagram : York Air ...

Goodman 10kw Heat Strip Wiring Diagram

Goodman 10kw Heat Strip Wiring Diagram

goodman electric furnace wiring diagram Archives - ROMA Heating Cooling Ltd Service Repair

goodman electric furnace wiring diagram Archives - ROMA Heating Cooling Ltd Service Repair

person holding red metal frame

person holding red metal frame

Goodman Heat Pump Thermostat Wiring Diagram Most Goodman ...

Goodman Heat Pump Thermostat Wiring Diagram Most Goodman ...

Zenith 9667 Carburetor Kit Float And Manual – Marvel ...

Zenith 9667 Carburetor Kit Float And Manual – Marvel ...

Goodman Heat Pump thermostat Wiring Diagram York Rheem ...

Goodman Heat Pump thermostat Wiring Diagram York Rheem ...

Goodman Hkr-10 Wiring Diagram

Goodman Hkr-10 Wiring Diagram

Sears HVAC Manuals, Parts Lists, Wiring Diagrams PDF Downloads, Sears, Goodman, Janitrol

Sears HVAC Manuals, Parts Lists, Wiring Diagrams PDF Downloads, Sears, Goodman, Janitrol

Broan electric furnace wiring diagram

Broan electric furnace wiring diagram

Goodman HKR-08C 7 Kilowatt Heater Coil (23,800 BTUs of Heat)

Goodman HKR-08C 7 Kilowatt Heater Coil (23,800 BTUs of Heat)

Headless with Bag (1993) // John Goodman American, born 1947

Headless with Bag (1993) // John Goodman American, born 1947

21 Lovely Goodman Furnace Wiring Diagram

21 Lovely Goodman Furnace Wiring Diagram

Ballet Skirt or Electric Light (1927) // Georgia O'Keeffe American, 1887–1986

Ballet Skirt or Electric Light (1927) // Georgia O'Keeffe American, 1887–1986

red car with yellow hose

red car with yellow hose

TECHNICAL MANU TECHNICAL MANUAL

TECHNICAL MANU TECHNICAL MANUAL

green and white number 2

green and white number 2

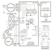
Goodman Electric Furnace Wiring Diagram | Wiring Diagram

Goodman Electric Furnace Wiring Diagram | Wiring Diagram

Goodman Heat Pump Air Handler Wiring Diagram : I chatted ...

Goodman Heat Pump Air Handler Wiring Diagram : I chatted ...

yellow blue and black coated wires

yellow blue and black coated wires

Goodman Furnace Wiring Schematic | Free Wiring Diagram

Goodman Furnace Wiring Schematic | Free Wiring Diagram

yellow arrow road sign

yellow arrow road sign

Goodman AC/Furnace wiring for Ecobee 3 Lite - need wiring help? : r/ecobee

Goodman AC/Furnace wiring for Ecobee 3 Lite - need wiring help? : r/ecobee

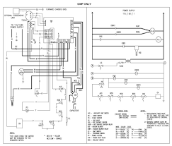
Goodman Furnace Wiring Diagram — UNTPIKAPPS

Goodman Furnace Wiring Diagram — UNTPIKAPPS

Goodman Electric Furnace Wiring Diagram | Free Wiring ...

Goodman Electric Furnace Wiring Diagram | Free Wiring ...

woman in white sweater driving car

woman in white sweater driving car

0 Response to "42 goodman electric furnace wiring diagram"

Post a Comment

Iklan Atas Artikel

Iklan Tengah Artikel 1

Iklan Tengah Artikel 2

Iklan Bawah Artikel